GAMBAR TULANGAN TUMPUAN DAN LAPANGAN
Pada kesempatan ini kami akan memberikan sebuah gambar tumpuan dan juga lapangan yang terdapat pada bangunan konsruksi.
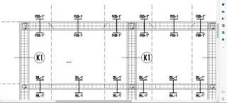
Gambar yang kami tunjukan pada postingan ini adalah gambar tulangan dan tumpuan yang ada pada ring balok.
![]() |
| Gambar ring balok | Utoeh |
Menurut kamu yang mana yang dimaksud dengan tumpuan ?
Dan yang mana yang termasuk lapangan ?
Yuk komentar dibawah ini.
Tumpuan dan Lapangan
Nah jika gambar diatas tidak ada keterangan yang mana tumpuan dan lapangan, maka gambar berikut ini akan kami buat keterangan di dalam gambar.
![]() |
| Gambar Tumpuan dan Lapangan | utoeh |
Setelah kamu melihat gambar diatas apa yang timbul dalam kepala anda ?
Apakah sudah tergambar perbedaannya ?
Dikarenakan postingan kami sebelumnya telah membahas tentang perbedaan ini, maka pada postingan ini tidak akan kami bahas lagi, akan tetapi kawan-kawan juga dapat mengunjungi postingan kami selanjutnya yang membahas perbedaan tumpuan dan lapangan.
Perbedaan Tumpuan dan Lapangan
Silakan klik disini "PERBEDAAN TUMPUAN DAN LAPANGAN RING BALOK" pada postingan tersebut juga telah tersedia file pdf dan dwg yang dapat kamu donwload segera.
Semoga postingan ini dapat bermanfaat bagi sobat sekalian. :)
Terimakasih telah berkunjung ke halaman kami yang berjudul "GAMBAR TULANGAN TUMPUAN DAN LAPANGAN"
Mohon maaf jika ada kesalahan dalam penulisan dan lain sebagainya, namun jika ada diantara sobat yang ingin memberikan ide, saran, komentar dan lain sebagainya dapat meninggalkan komentar dibawah ini atau dapat melalui email kami : sharelaju@gmail.com
Keyword : tumpuan, lapangan, tumpuan dan lapangan, ilmu sipil, utoeh
Orang lain juga mengunjungi gambar tulangan dan tumpuan dengan keyword :
- tulangan tumpuan dan lapangan balok
- fungsi tulangan tumpuan dan lapangan
- tulangan tumpuan dan lapangan pada sloof
- tumpuan dan lapangan kolom
- tulangan tumpuan dan lapangan pada kolom
- panjang tulangan tumpuan dan lapangan
- tulangan tumpuan dan lapangan pada plat
- gambar tulangan tumpuan dan lapangan
- tulangan tumpuan dan lapangan sloof
- tulangan tumpuan dan lapangan balok
- cara menghitung tulangan tumpuan dan lapangan
- fungsi tulangan tumpuan dan lapangan
- tulangan tumpuan lapangan
- tulangan tumpuan dan lapangan pada kolom
- tulangan tumpuan adalah
- kenapa tulangan tumpuan lebih rapat
- baja tulangan beton
- tabel tulangan beton
- besi tulangan
- baja tulangan polos
- diameter tulangan beton
- material beton bertulang
- tulangan adalah


Posting Komentar untuk "GAMBAR TULANGAN TUMPUAN DAN LAPANGAN"